Nous avons rencontré l'entreprise Demasure (implantée en Belgique), l'un des patrons est d'abord venu à notre domicile prendre les mesures, etc. puis nous nous sommes rendu sur place ce matin, pour visiter les vérandas exposées, visiter l'usine et enfin discuter du prix.
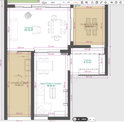
Notre projet est de réaliser une véranda sur une partie de notre terrasse de jardin actuelle, exposée Sud - Ouest, accessible par notre baie vitrée.
A savoir que nous avons très très peur de la chaleur, et que nous souhaiterions profiter de cette nouvelle pièce le plus possible durant l'année, même si nous ne sommes pas dupe
Le patron nous a conseillé une toiture plate, sans puis de lumière (de toute façon inutile d'après lui au vu des dimensions de la future pièce)
La véranda fera 5m85 x 4m habitables (surface à l'intérieur des murs)
Le monsieur nous a conseillé ce qu'il appelle des "screns", des stores roulants EXTERIEURS, qui permettent de limiter l'ensoleillement mais qui permettent de toujours voir l'extérieur à travers ces stores.
Nous sommes repartis avec ces éléments de prix :
- 31 300€ HT (38 000€ TTC), inclus triple vitrage, isolation toiture au top apparemment (mais rien d'écrit, donc j'ai déjà oublié tout ce qu'il a dit..). Il a beaucoup parlé de l'importance des "noeuds", des ponts thermiques.....
A ajouter à ce montant :
- la maçonnerie. Le terrain voisin est un terrain "vague", et entre ma terrasse et ce terrain, il y a un mur en béton, qu'il faudra détruire, et monter un mur parpaing à la place. Il y a déjà une dalle existante (ma terrase actuelle), et comme la dalle est actuellement plus basse que le niveau de la maison, il pourra rattraper le niveau et isoler. Il estime la maçonnerie à la louche aux environs de 12/15 000€ mais il n'a pas de maçon dans l'entreprise, il faudra donc qu'il voit avec un maçon pour nous donner un chiffre plus précis.
- les fameurs screens, pour 5 550€ HT
- placo prêts à peindre 1800€ HT
- 10 spots 1 200€ HT
Nous hésitons beaucoup sur l'installation des stores, qui nous paraissent bien cher mais indispensables...
Je joins un plan et des visualisations réalisées par moi-même...juste pour se rendre compte des proportions et de l'emplacement. Je ne m'embête pas à rendre ça 100% réaliste !
Et enfin quelques réalisations de cette entreprise qui nous inspirent :
pour les petits carreaux en haut, et la couleur de l'alu :
https://www.demasure.be/sites/demasure/ ... k=eIBTvuez
Les fameux stores extérieurs :
ouverts : https://www.demasure.be/sites/demasure/ ... 6880_o.jpg
fermés : https://www.demasure.be/sites/demasure/ ... 1984_o.jpg

